info   kontakt





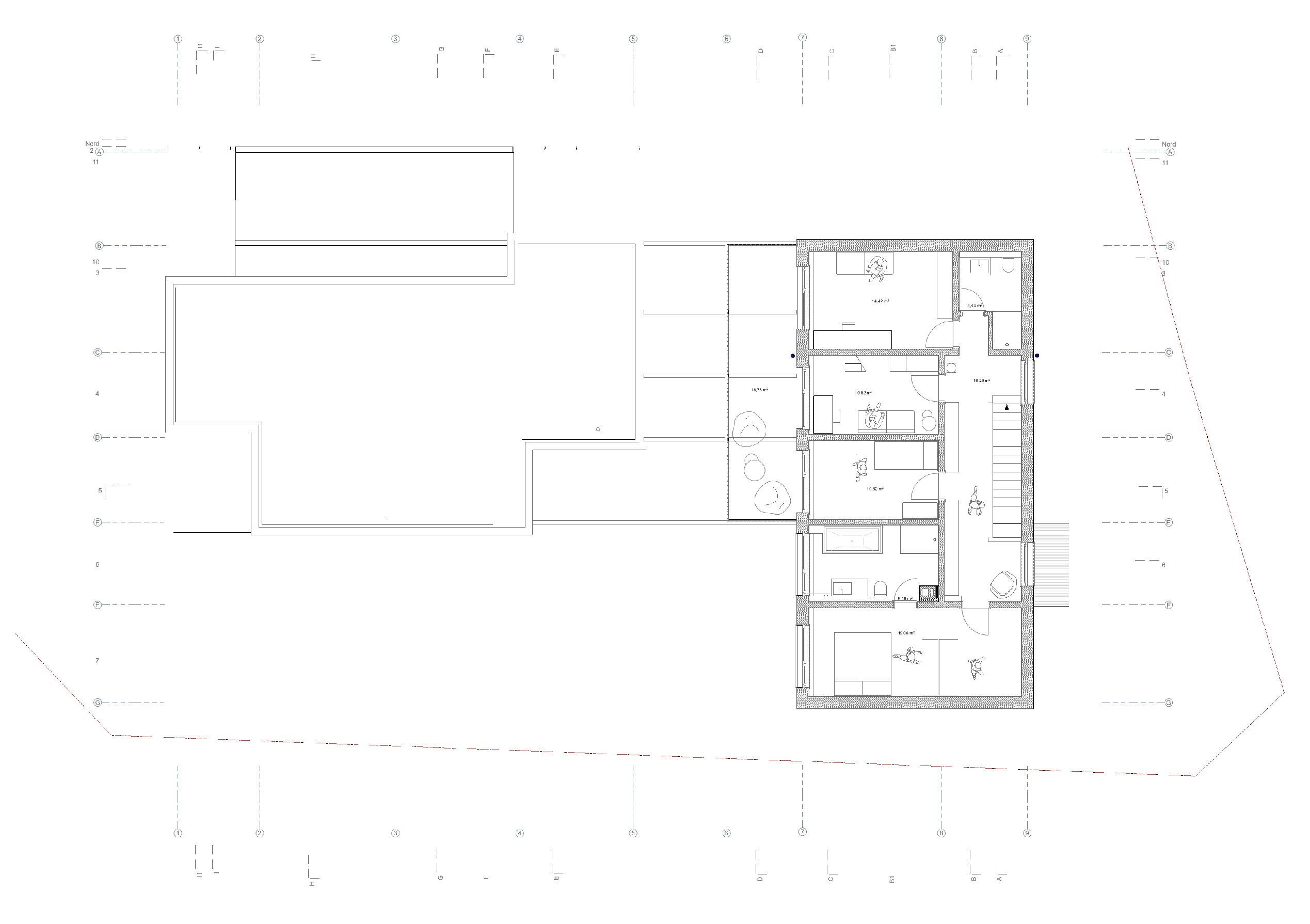
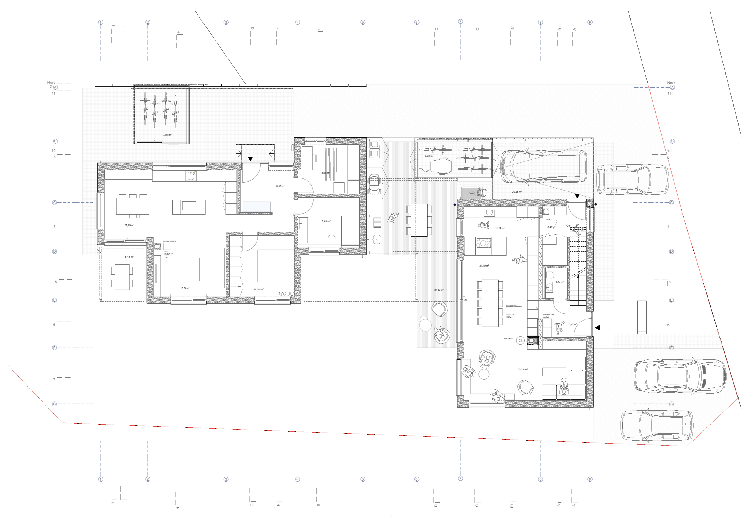
Mehrgenerationenwohnen auf einem Grundstück - die junge Kleinfamilie lebt im zweigeschossigen Einfamilienhaus und die Großeltern im barrierearmen Bungalow. Ein wichtiges Anliegen der Auftraggebenden war ein Ausloten von Gemeinschaft versus Privatsphäre. Der Bungalow orientiert sich nach Westen ins Grüne. Der umbaute Raum des Einfamilienhauses wird durch eine verbindende Stahlstruktur zwischen den zwei Baukörpern um eine räumlich gefasste Terrasse mit Außenküche erweitert. Bis zur unabsehbaren Preissteigerung des Holzes im Jahr 2022 waren die beiden Gebäude in Holzbauweise konstruiert. Aus Sorge vor noch weiter explodierenden Holzpreisen wurde die Konstruktion umgeplant zu einem monolithischen Gebäude aus Poroton.

In Zusammenarbeit mit AHA - Atelier für Holzbau und Architektur in Basel.

Ort
BGF
Kosten
Bauleute
Baujahr
Leistung

Gutach, DE
304qm
1.353.000€ brutto

privat

2023
LPH3-LPH9