info   kontakt







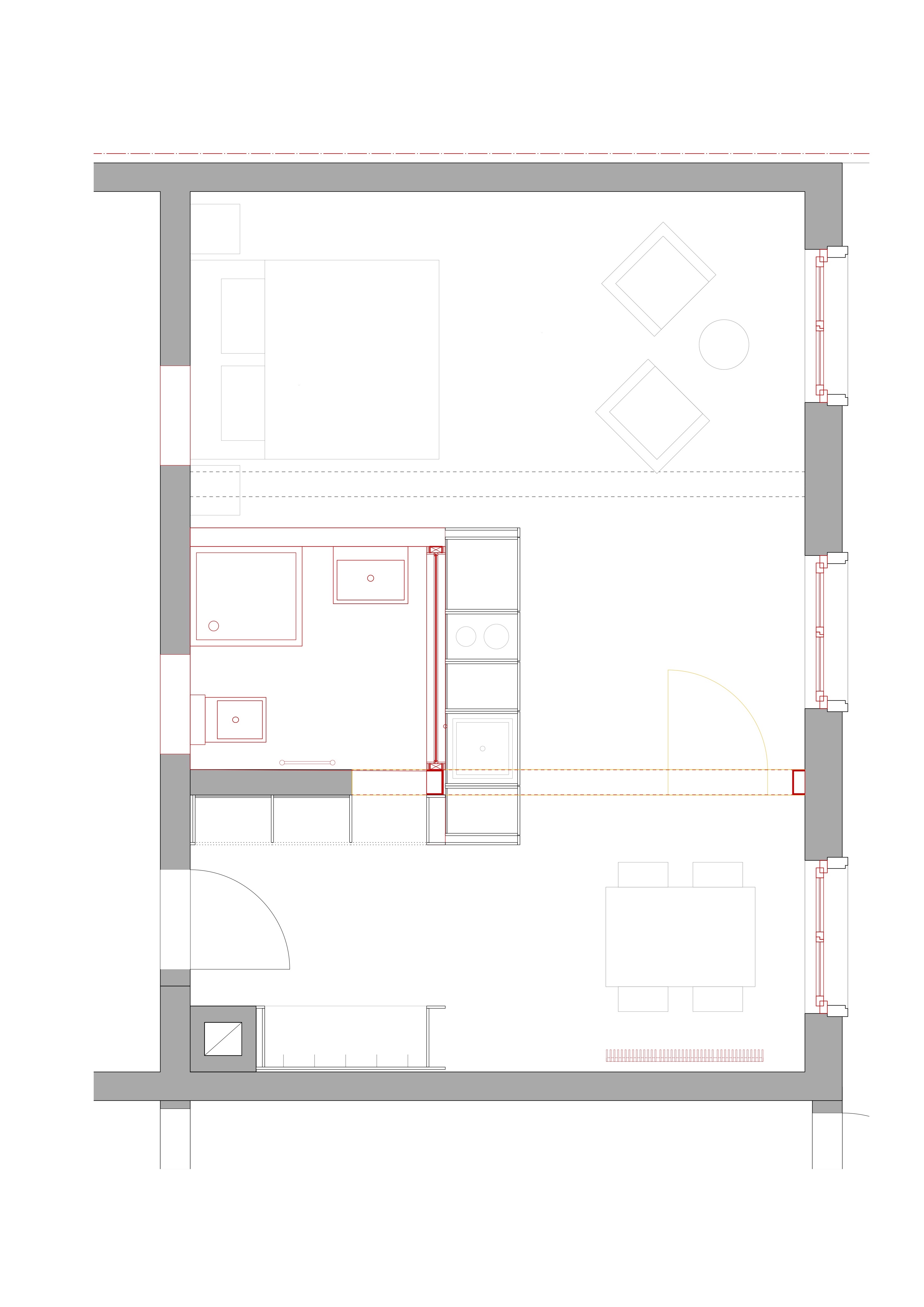
Als ersten Sanierungsschritt eines größeren Umbaus sollte eine Ferienwohnung am Bodensee entstehen. Durch die Hanglage des Hauses schiebt sich das Kellergeschoss Richtung Süden aus dem Hang heraus und wird zu einem vollwertigen Geschoss. Die ursprünglichen drei schmalen Zimmer werden zu einem großzügigen Raum verbunden. Durch das Abbrechen der Brüstungsfenster und den Einbau von bodentiefen Fenstern wird Licht in den tiefen Raum gebracht und ein direkter Zugang zu Terrasse und Garten geschaffen. Der mittig eingestellte Funktionsraum zoniert das Studio. So entwickelt sich, durch die räumliche Abfolge, von Eingang zu Schlafnische ein immer privateres Gefühl. Die Doppelnutzung der Einbauten im Entree lassen die Möbel zum Bauteil werden. Die Schranktüre ist gleichzeitig die Türe zum Badezimmer. 


Ort
Bauleute
Baujahr
Leistung

Überlingen, DE

privat
2018
LPH1-LPH9