info   kontakt







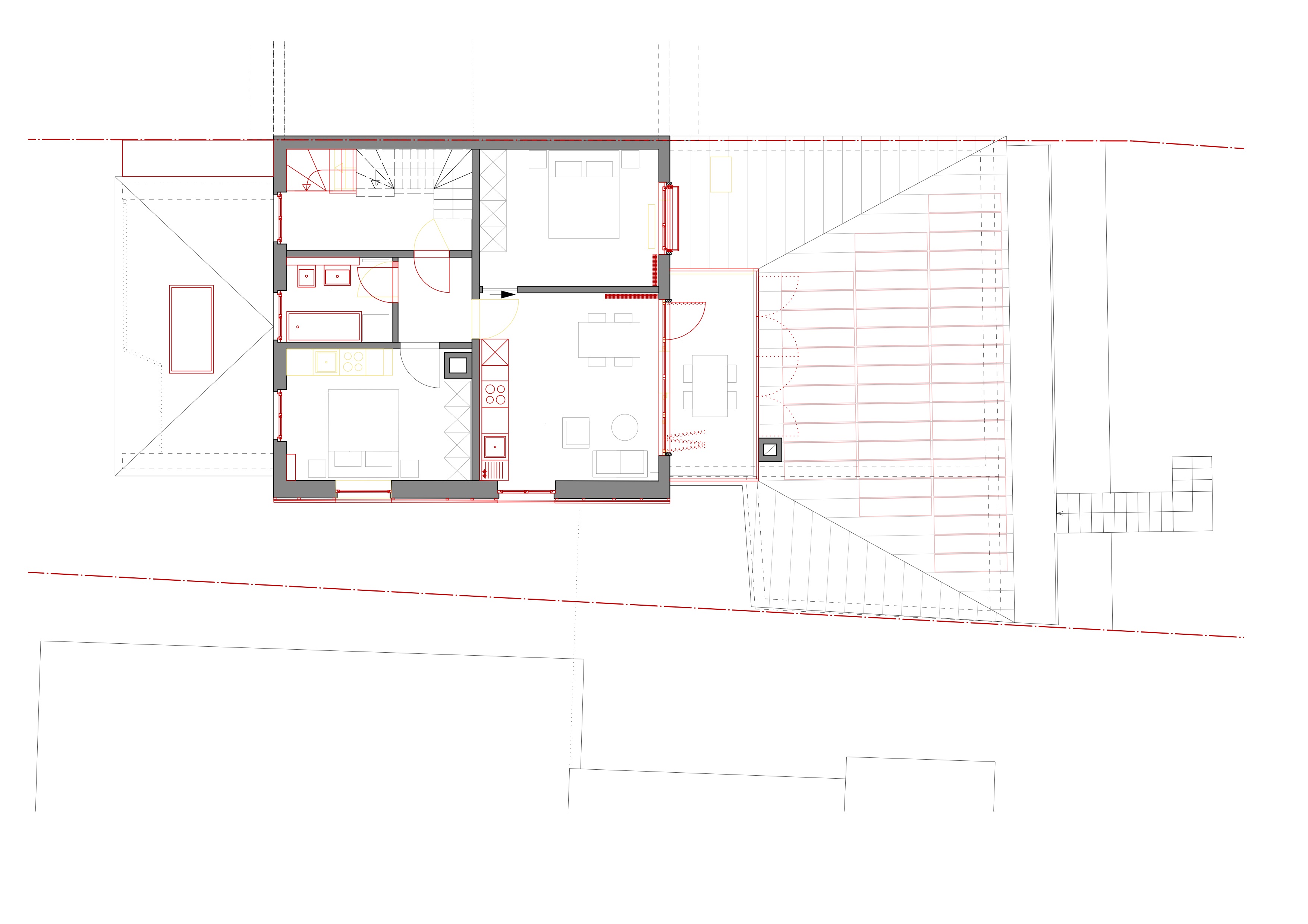
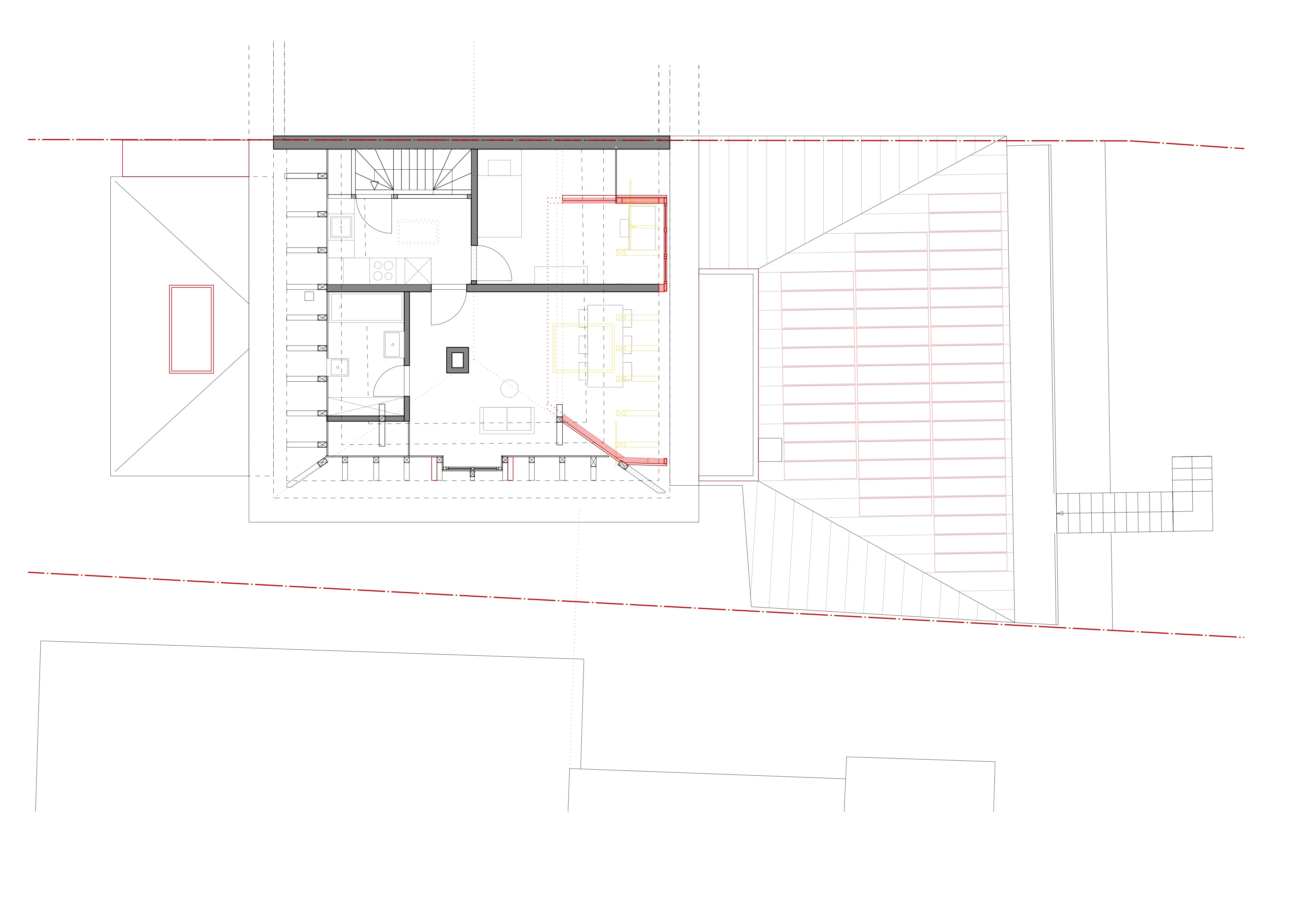
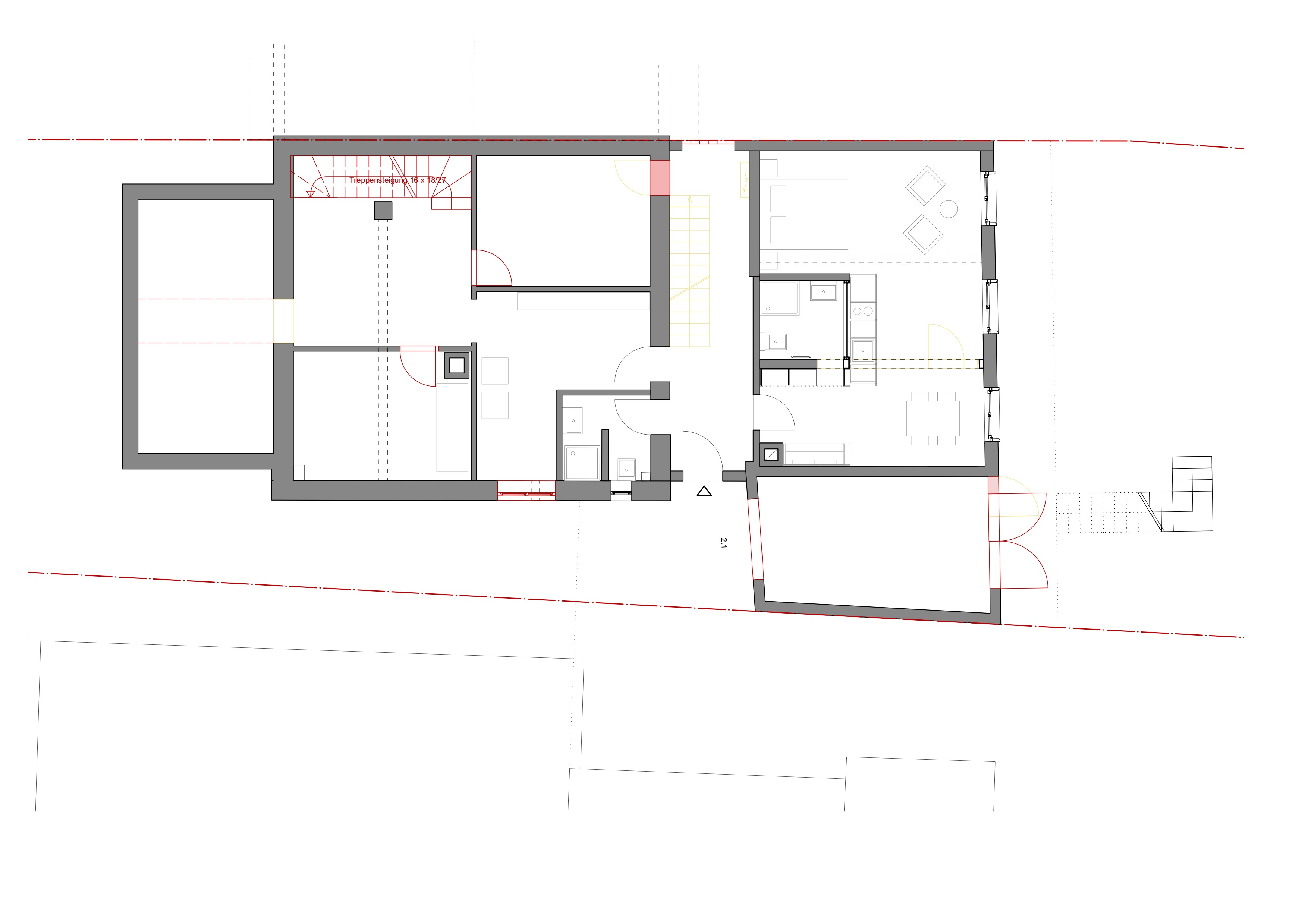
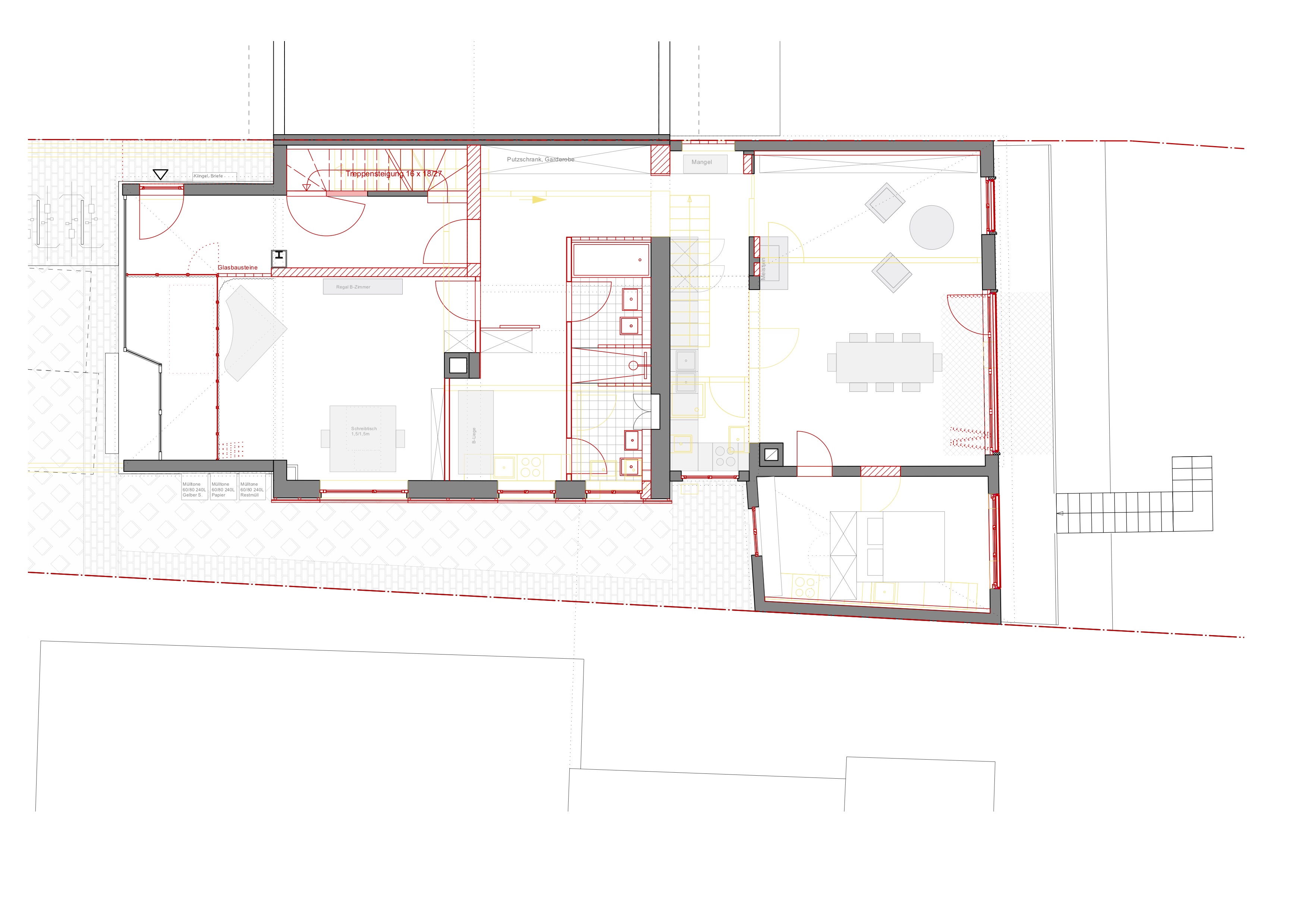
Das ursprüngliche Gebäude von 1936 wurde in den 60er Jahren mehrfach um - und angebaut. Der Fokus der Veränderungen lag auf der Nutzung eines Lebensmittelladens im Erdgeschoss. Dieser wurde Stück für Stück erweitert. Bei der Planung zurück in ein Mehrfamilienhaus wurde die Raumaufteilung und Erschließung grundlegend umstrukturiert. Durch das Zurücklegen des Eingangs an die Straße bekommt das Haus wieder eine Adresse. Die Treppen liegen nun wieder übereinander um die Erschließungsfläche des Hauses zu reduzieren und bei gleicher Fläche mehr Wohnraum zu schaffen. Neue und größere Fensteröffnungen bringen mehr Licht in die tiefen Räume. Durch eine Gebäudehüllenheizung und den Einsatz von solaren Gewinnen durch Wintergärten wird auf eine Dämmung verzichtet und dennoch der Energiebedarf deutlich reduziert.


Ort
BGF
Kosten
Bauleute
Baujahr
Leistung

Überlingen, DE
482qm
590.000€ brutto

privat

1936, 60er , 2018, 2023-24
LPH1-LPH9